The Voice of the Cruise Industry
Cruise Trade News
MENU menu
Swan Hellenic

ULTIMATE DESTINATION GUIDE

SH Minerva

Our 5 star elegant Scandi-design boutique ship offers you an intimate setting from which you will be fully immersed in all the sights and scenery…

About SH Minerva

Our 5 star elegant Scandi-design boutique ship offers you an intimate setting from which you will be fully immersed in all the sights and scenery of your voyage.

For now, sit back, relax and take a moment to get to know your expedition ship.

Our brand new ship has been designed to journey to off the beaten path destinations and remote polar regions in style and comfort.

The ship incorporates a PC5 ice-strengthened hull combined with extra-large stabilisers to make your journey as smooth as possible.

Ship Facts

Launch yearLanguageGross tonnageLengthWidthCurrencySpeedCapacityCrew countDeck countCabin countLarge cabin countWheelchair cabin countElectrical plugs
2021en10617115 meters24 metersUSD12 knots15812297672 types:
USB
adapters provided:
false

Accommodation

Each cabin welcomes you with a bottle of Champagne (75cl – Premium Suites, Suites, Junior Suites/37.5cl – Balcony, Oceanview) and there’s also free Wi-Fi, personal safe, and a pair of Nikon Prostaff 3S 10x42 binoculars to help you watch out for wildlife!

Amenities include TV service, stocked minibar with soft drinks & beer, Illy Espresso coffee machine with pods, kettle and Kusmi tea bags; towels for cabin, pool and gym, bathrobe, bedroom slippers, and toiletries by Lajatica.

Premium Suite

Premium Suites have a king size bed, separate living room, and flame-effect fireplace. There’s also a luxurious ensuite bathroom – with separate bath tub and shower – walk-in wardrobe, and a 12m2 (129ft2) private balcony.

Facilities

  • Lounge Area
  • Shower
  • Toiletries Provided
  • Room Service Available
  • Suite Benefits
  • Free Mini Bar
  • TV
  • Free Wi-Fi
  • Safe
  • Hair Dryer
  • Telephone
  • Desk
  • King or Twin Configuration

Suite

Suites feature a king size bed, and have a separate living room, with a flame-effect fireplace. There’s also a luxurious ensuite bathroom – with separate bath tub and walk-in shower – and a 10m2 (108ft2) private balcony.

Facilities

  • Lounge Area
  • Shower
  • Toiletries Provided
  • Room Service Available
  • Suite Benefits
  • Free Mini Bar
  • TV
  • Free Wi-Fi
  • Safe
  • Hair Dryer
  • Telephone
  • Desk
  • King or Twin Configuration

Balcony

Balcony Staterooms feature two single beds or a double bed, bedroom with living room area, a luxurious bathroom, and a 5m2 (54ft2) private balcony.

Facilities

  • Double or Twin Configuration
  • Lounge Area
  • Shower
  • Toiletries Provided
  • Room Service Available
  • Free Mini Bar
  • TV
  • Free Wi-Fi
  • Safe
  • Hair Dryer
  • Telephone
  • Desk

Oceanview

Oceanview Staterooms feature two single beds or a double bed, a bedroom with living room area, and a luxurious bathroom.

Facilities

  • Double or Twin Configuration
  • Lounge Area
  • Shower
  • Toiletries Provided
  • Room Service Available
  • Free Mini Bar
  • TV
  • Free Wi-Fi
  • Safe
  • Hair Dryer
  • Telephone
  • Desk

Entertainment

We know how important outdoor space is, so our spacious, relaxing public spaces provide wide open, unobstructed views throughout the ship. The destination will always be in view.

The Observation Lounge

After a day of exploration, where better to relax than in the Observation Lounge. Sit back, savour your favourite tipple whilst getting to know your fellow guests.

Library

Take time to relax in one our spacious viewing areas and enjoy our wide selection of rich reference and other reading materials in the stylish library.

Swan's Nest

Take a pew in the forward-facing Swan’s Nest observation platform for extraordinary 180-degree views.

Reception

The Reception is located on Deck 4.

The Photography Lab

Capturing the right images of your voyage has never been more important. And on an expedition cruise to exceptional destinations there’s a lot you can do to enhance your pictures. Whether you're shooting on your phone, or a camera, our experts on-board will offer tips on downloading and upskilling as well as editing to ensure you capture the best memories possible.

But we’ve taken it one step further. Our state-of-the-art photography lab is dedicated to ensuring guests capture every moment from their once-in-a-lifetime trip. This is a fun place to come and learn, ask questions and swap tips with fellow passengers. Private tuition available on request.

Dining

The Swan Restaurant

As the main venue for breakfast, lunch and dinner, the Swan Restaurant serves gourmet creations from award-winning chefs. Our 152-seat restaurant serves international and regional cuisine, focused on quality local ingredients from the special destinations we visit. With an open seating policy, you can dine at your leisure, from breakfast through to dinner.

The Swan Restaurant Private Dining

Bespoke & private dining experiences will be offered both inside and outside (depending on the weather conditions and routing). Offering guests superb the opportunity to enjoy and explore top-tier culinary skills and the local landscape that is home to distinctive unique flavours of seasonal ingredients, alongside fine wines.

The Club Lounge

Vibrant and welcoming, the Club Lounge acts as a hub for relaxed get-togethers, 24 hours a day. With a variety of delicious food on offer – from freshly baked pastries and coffee, and traditional British afternoon tea, to tapas-style dining, and freshly made pizza – whatever you choose, it’s sure to be the perfect complement to a panoramic view of the glittering ocean.

Room Service

No matter what time of day, our carefully curated In-Cabin Dining Menu traverses perennial international favourites and a plethora of international delicacies, providing a world-class gastronomic experience in the comfort of your own cabin.

Start your morning right with a nourishing selection of breakfast dishes – from a healthy yoghurt, granola and local seasonal fruit to a heartier regionally inspired eggs benedict. Or opt for a more intimate lunch or dinner, served al fresco on your private veranda.

Room Service may also be ordered from the Swan Restaurant during regular dining hours.

A selection of late-night snacks and light bites has been created to pair perfectly with your In-Cabin movie. Please refer to the In-Cabin Dining Menu to place your order.

Room Service is available 24 hours a day.

Pool Bar & Grill

If you’re a fan of alfresco dining, you’ll love our Pool Grill & Bar! With stellar views of the glistening sea, this friendly space serves delicious dishes created from local, seasonal ingredients, along with grilled classics and handcrafted cocktails and drinks.

Enrichment

If you are looking to experience the remote Polar regions or explore truly off-the-beaten path destinations and cultures of our spectacular planet, then you are in great company. Swan Hellenic exists to provide its guests with authentic, intimate and unforgettable moments in extraordinary locations and remote landmarks. 

Lectures

Exploratory travel is in our DNA, which is why our polar experts are focused on ensuring our guests return home having had the most authentic experience possible. Our inquisitive, like-minded passengers share a thirst for knowledge. Swan Hellenic’s lecturers and guest speakers are carefully selected to give engaging and stimulating talks on a wide range of subjects that are relevant to each itinerary. They bring specialist knowledge and insight into the scientific, geographic and historical understanding of the remote polar regions that allows the customer to fully embrace the wondrous environments in which they are travelling.   

Excursions

No stone is left unturned when it comes to researching our shore excursion programmes. All aspects of the itinerary are carefully planned in detail by a knowledgeable, well travelled team to ensure each aspect of the cruise is delivered to the highest possible standard.

We’ve thought of all our guests, including the less mobile. Our 12-person hard-hulled zodiacs, the boats that take guests off the ship, have been designed for increased comfort and manoeuvrability so that everyone can get up close and personal with their majestic surroundings.

As well as our daily zodiac excursions there are opportunities for polar kayaking and trekking and for the brave… The Polar Plunge.

For expeditions ashore, there is a heated concierge managed changing room we like to call Basecamp.

Expedition Lab

The Expedition Lab can be found on Deck 3.

Health & Fitness

Sauna

Head to Deck 8 for the best views in the world. After a work out in our gym, relax in our panoramic sauna and take in the stunning scenery. Our sauna is the perfect place for meditative moments after your onshore activities or to finish a well-deserved pampering session.

Spa

Choose from one of the many beauty and wellness treatments at our Balinese spa, including hot stone and bamboo massages, and pampering body care. 

Gym

Our state-of-the-art gym has everything you’ll need for an invigorating workout, from cardio machines to stretch bands and free weights. There are also instructor-led classes available, along with personal trainers, offering everything from resistance training and Pilates, to yoga and meditation.

Swimming Pool

On Deck 7 you'll find a heated outside pool along with pool side seating from where you can enjoy stunning scenery.

Beauty Salon

Choose from one of the many beauty and wellness treatments.

Deckplans

Deck 9

  • Stargazing Deck
  • Lift

Deck 8

  • Gym
  • Sauna
  • Spa
  • Jacuzzi
  • Bridge
  • Lift

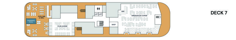
Deck 7

  • Lift
  • Swimming Pool
  • Pool Bar & Grill
  • Shop
  • Bar
  • Club Lounge
  • Observation Lounge

Deck 6

  • Lift
  • Premium Suites
  • Suites
  • Balcony Cabins
  • Swan's Nest

Deck 5

  • Lifeboats
  • Lift
  • Suites
  • Balcony Cabins

Deck 4

  • Reception
  • Entrance
  • Lift
  • Launderette
  • Swan Restaurant
  • Ocean View Cabins

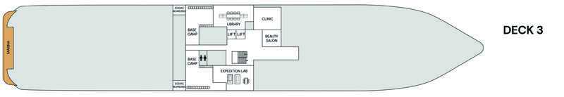
Deck 3

  • Expedition Lab
  • Base Camp
  • Lift
  • Beauty Salon
  • Clinic
  • Library
  • Zodiac Boarding

Sign In

Lost your password?