About American Liberty
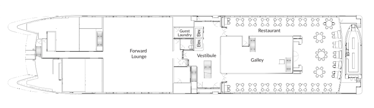
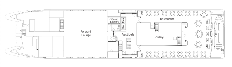
At a capacity of just 100 guests, American Liberty offers the best qualities of expedition adventure cruising with the refinement, luxury, stability, and land proximity of river cruising. The design of the ship allows rare access into small ports and ability to travel on almost any river or waterway in the U.S. With land never out of sight, American Liberty is a practical alternative to ocean expeditions, allowing for more time to explore each port in depth.
Relax in one of the spacious staterooms and enjoy the scenic views from your private balcony. Or sit at one of the observation areas and admire the splendid vistas with fellow travellers. If you are feeling adventurous a unique Swim/Activity Platform at the stern of the ship features kayaks and a tender for local exploration.
Studio DADO, the Miami based firm responsible for the interior designs of our newest modern riverboats, will be back to tailor an onboard atmosphere for American Liberty that evokes a sense of pride and appreciation for U.S. history. The choice of colour palettes, furnishings, and art work will reflect the culture of the New England, Chesapeake Bay, and the Southeast
The inaugural cruise season of American Liberty begins in the summer of 2023 on select Chesapeake Bay, New England, and Historic South itineraries.
Ship Facts
| Launch year | Length | Width | Speed | Capacity | Crew count | Deck count | Cabin count | Electrical plugs |
|---|---|---|---|---|---|---|---|---|
| 2024 | 74 meters | 17 meters | 18 knots | 100 | 50 | 5 | 56 |
types: adapters provided: false |
Accommodation
Entertainment
Dining
Enrichment
Your onshore experience is as important as your onboard experience, so American Cruise Lines has taken special care to research and plan excursions at each port. With American Cruise Lines you will experience what makes each destination a special place. Your pre-cruise booklet that is mailed out to you offers a comprehensive list of tours that will take you to the finest local sites at each port and give you insight into the area’s culture, heritage and history.















